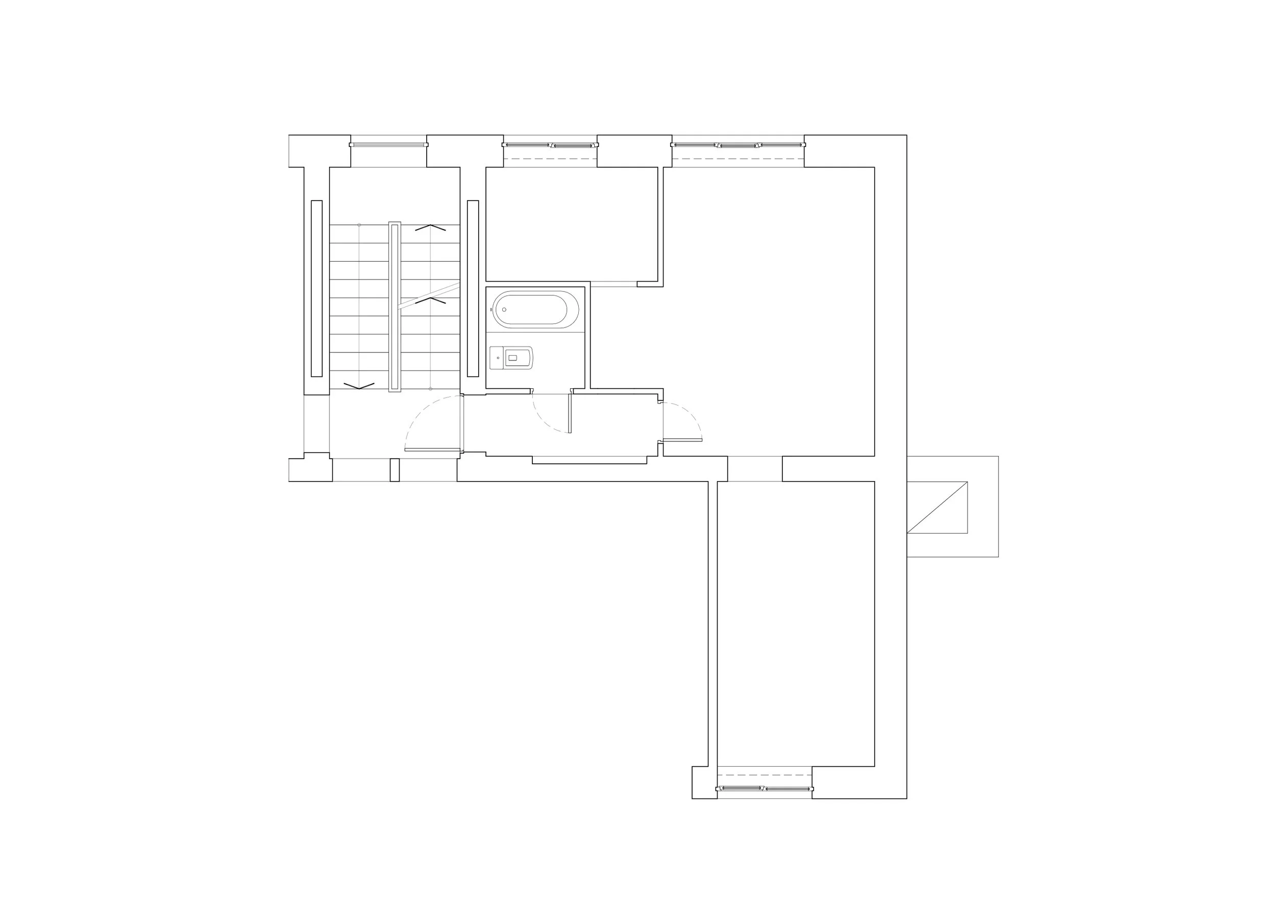
2 istabu dzīvokļa rekonstrukcija padomju laika 316. sērijas daudzdzīvokļu ēkā.
Galvenais jaunā plānojuma elements ir siena starp dzīvojamo istabu un mazajām telpām, kura sastāv no 5 durvīm ar virsgaismas logiem (vai antersola durvīm) virs tām.
Jaunā plānojuma ieguvumi:
> palielināta dzīvojamās istabas lietderīgā platība,
> palielināta virtuves lietderīgā platība un funkcionalitāte,
> samazināts priekštelpas garums,
> izveidots iebūvēts drēbju skapis, kurš vienlaicīgi veido skaņas barjeru starp dzīvojamo istabu un vannas istabu.
Lai vairāk izgaismotu telpas un tās vizuāli paplašinātu:
1) siena starp virtuvi un istabu projektēta kā stikla starpsiena ar bīdāmām durvīm,
2) virs priekštelpas durvīm izbūvēta stikla vitrīna,
3) vannas istabas sienā uz virtuvi izbūvēta stikla bloku rinda.
Dzīvoklis Rīgā, Āgenskalnā
Dzīvokļa rekonstrukcija
Āgenskalns, Rīga
Apjoms: 42.5 m2 (2 istabas)
Projekts, būvniecība: 2011
Stadija: realizēts